In the mounting fight between police and military equipment manufacturer Axon and residents opposed to its plans for a multi-use campus in north Scottsdale, Axon took an early blow last week.
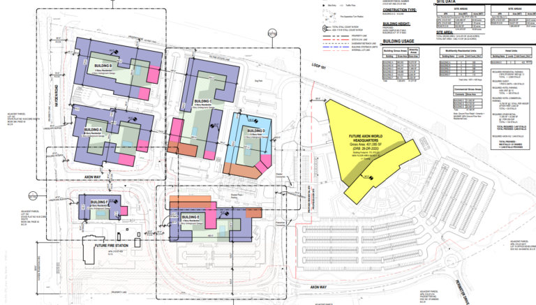
The Scottsdale Airport Advisory Commission unanimously voted to deny a recommendation of the company’s rezoning request for a more than 1.5MSF mixed-use master plan corporate campus at the NEC of Hayden Road and Mayo Blvd.
Commissioners expressed concern that the planned hotel and nearly 2,000 apartments included in the plan could eventually create enough complaints to threaten operations at Scottsdale Airport.
Axon originally purchased the land and announced plans for a new corporate headquarters. It later expanded its vision to include the headquarters, 1,975 apartments, a 425-room hotel and ground-floor retail in a campus project representatives have compared with Google and Apple campuses in California. The company claims the campus features will help it attract skilled workers for its operations.
The expansion surprised nearby residents in the Stonebrook community, and opposition arose quickly.
The location is currently zoned for industrial use. The company received state approval to pursue rezoning, but the process has to go through several steps in the face of entrenched neighborhood opposition, including hearings before the Planning Commission and City Council.
Neighbors speaking before the Airport Advisory Commission largely focused their concerns on the campus’ traffic impacts and potential to harm the character of the existing single-family neighborhood. Commissioners’ comments were largely targeted toward the potential for harm to the airport’s long-term viability, particularly that the estimated 4,000 eventual new residents would complain about noise and lead to the airport’s forced closure.
Project representatives said the construction would use high-quality building materials intended to reduce airplane noise and that residents would have to sign waivers acknowledging they were aware of their proximity to the airport.
Commissioners were unmoved by the argument and said the potential for harm over time was too great.
The next step in the review and approval process will be a hearing before the Planning Commission this week and before City Council on Feb. 6. (Source)

