What's Hot

    Ariz. Construction Added 2,900 Jobs in February

    April 22, 2026

    New Multifamily Planned for Village at Prasada

    April 22, 2026

    Home Builder Sentiment Dips in April

    April 22, 2026
    Facebook Twitter Instagram
    AZBEX
    NEWS TICKER
    • [April 22, 2026] - Ariz. Construction Added 2,900 Jobs in February
    • [April 22, 2026] - New Multifamily Planned for Village at Prasada
    • [April 22, 2026] - Home Builder Sentiment Dips in April
    • [April 22, 2026] - Industry Professionals 04-21-26
    • [April 22, 2026] - Commercial Real Estate 04-21-26
    • [April 20, 2026] - Mesa Considering Small-Scale Transportation Project Program
    • [April 17, 2026] - BEX LMS Public Works Event Details Extensive Project Visions
    • [April 17, 2026] - Old Town Scottsdale Parking Garage Takes Another Step Forward
    LinkedIn Facebook
    • Home
    • News
      1. View Latest
      2. ✎ Planning & Development
      3. 📰 Local News
      4. 🔎︎ Classifieds
      5. 🕵 Editorial Analysis
      6. 💰 Budgets & Funding
      7. 🏢 Commercial Real Estate
      8. 👔 People on the Move
      9. 🌵 Arizona Projects
      10. 🏛️ Legislation & Regulations
      11. 📈 Trends

      New Multifamily Planned for Village at Prasada

      April 22, 2026

      BEX LMS Public Works Event Details Extensive Project Visions

      April 17, 2026

      Old Town Scottsdale Parking Garage Takes Another Step Forward

      April 17, 2026

      Buckeye P&Z to Consider Rezoning for Freeway Industrial Development

      April 14, 2026

      Mesa Considering Small-Scale Transportation Project Program

      April 20, 2026

      Flagstaff Planning and Zoning Commission Moves Forward with Data Center Ban

      April 10, 2026

      Ariz. Construction Shed 2,200 Jobs in January

      April 7, 2026

      Phoenix Crane Count Steady in Q1

      April 7, 2026

      Developers Must Work Differently to Counter Intensifying Project Opposition

      January 6, 2026

      Scottsdale Hospitals War May Heat Up with New Banner Request

      July 29, 2025

      Glendale Voters to Determine VAI Resort’s Fate

      May 16, 2025

      Legislation Would Effectively Strip NIMBYs of Referendum Tool

      February 11, 2025

      Mesa City Council Approves $61M GO Bond Sale

      April 10, 2026

      Gilbert Schools Considering $136M Bond Request

      March 31, 2026

      Ruling Give 8 Months, No Guidance, For State to Fix School Funding

      March 10, 2026

      Gilbert Considering Other Methods to Fund Transportation Projects

      January 6, 2026

      Commercial Real Estate 04-21-26

      April 22, 2026

      Commercial Real Estate 04-14-26

      April 14, 2026

      Commercial Real Estate 04-07-26

      April 7, 2026

      Commercial Real Estate 03-31-26

      March 31, 2026

      Industry Professionals 04-21-26

      April 22, 2026

      Industry Professionals 04-14-26

      April 14, 2026

      Industry Professionals 04-07-26

      April 7, 2026

      Industry Professionals 03-31-26

      March 31, 2026

      Arizona Projects 04-17-26

      April 17, 2026

      Arizona Projects 04-10-26

      April 10, 2026

      Arizona Projects 04-03-26

      April 3, 2026

      Arizona Projects 03-27-26

      March 27, 2026

      Flagstaff Considering Imposing Data Center Restrictions

      March 27, 2026

      Cities May Have to Pay for Data Center Zoning Restrictions Under State Law

      March 27, 2026

      Bill to Curtail Municipal Home Design Requirements Stirs Controversy

      March 25, 2026

      Federal Housing Bill Could Gut BTR Development

      March 17, 2026

      Ariz. Construction Added 2,900 Jobs in February

      April 22, 2026

      Home Builder Sentiment Dips in April

      April 22, 2026

      Data Centers Fuel Backlog Increase; Confidence Remains High

      April 17, 2026

      Industrial and Office Data Show Healthy Markets in Q1

      April 14, 2026

      Ariz. Construction Added 2,900 Jobs in February

      April 22, 2026

      New Multifamily Planned for Village at Prasada

      April 22, 2026

      Home Builder Sentiment Dips in April

      April 22, 2026

      Industry Professionals 04-21-26

      April 22, 2026
    • AZBEX
      • Subscribe
      • Solicitations
      • Classifieds
      • Advertising
    • DATABEX
      • DATABEX Log-In
      • Webinars
      • Monthly Snapshot
    • Events
      • 2026 Mid-Year Update
      • 2026 Public Works LMS
    • About Us
      • Meet the Company
      • Meet the Sales Team
      • Meet the Editorial Team
      • Meet the BEXperts
    • CIP Special Report
    AZBEX
    Home»Planning & Development»Maricopa Station Retail Plans Submitted
    Planning & Development

    Maricopa Station Retail Plans Submitted

    BEX StaffBy BEX StaffApril 26, 2023No Comments2 Mins Read
    Credit: Thompson Thrift, City of Maricopa
    Share
    Facebook Twitter LinkedIn Pinterest Email

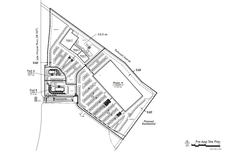
    The City of Maricopa and Thompson Thrift are moving forward with their respective processes to sell 19.05 acres and develop a retail property. Known as Maricopa Station South, the City publicly solicited for bids from developers to sell the land and proceed with commercial development. Thompson Thrift is the successful bidder and has now filed a pre-app to the City for their vision on the land.  

    The parcel is located at John Wayne Pkwy, south of the Amtrak Railroad and was recently part of a larger effort by the city to rezone the area from rural and industrial to commercial and mixed-use. 

    The Thompson Thrift proposal plans buildings ranging from 24KSF to 140KSF to accommodate a wide range of retail tenants. In addition to retail shops, drive through restaurants are planned on pads closest to John Wayne Pkwy.  

    According to Joshua Bowman, Director of Economic Vitality for the City of Maricopa, no timeline is available for when the land sale will close with Thompson Thrift. The pads and big-box retailer will select their own architect and general contractors at a later date. No information was available regarding the master land planner or shops architect and general contractor.  

    Share. Facebook Twitter Pinterest LinkedIn WhatsApp Reddit Tumblr Email

    Related Posts

    New Multifamily Planned for Village at Prasada

    April 22, 2026

    BEX LMS Public Works Event Details Extensive Project Visions

    April 17, 2026

    Old Town Scottsdale Parking Garage Takes Another Step Forward

    April 17, 2026

    Leave A Reply Cancel Reply

    Our Picks

    Ariz. Construction Added 2,900 Jobs in February

    April 22, 2026

    New Multifamily Planned for Village at Prasada

    April 22, 2026

    Home Builder Sentiment Dips in April

    April 22, 2026

    Industry Professionals 04-21-26

    April 22, 2026
    Stay In Touch
    • Facebook
    • Twitter
    • LinkedIn
    • YouTube
    Don't Miss
    Trends

    Ariz. Construction Added 2,900 Jobs in February

    April 22, 20260

    By Roland Murphy for AZBEX Employment in the Arizona Construction sector continued its trend of…

    New Multifamily Planned for Village at Prasada

    April 22, 2026

    Home Builder Sentiment Dips in April

    April 22, 2026

    Industry Professionals 04-21-26

    April 22, 2026

    BEX serves architecture, engineering and construction firms as well as all the ancillary product and service categories that market to them. These include manufacturing representatives, public agencies and private real estate organizations, specialty subcontractors and services providers related to our industry.

    Our Picks

    Ariz. Construction Added 2,900 Jobs in February

    April 22, 2026

    New Multifamily Planned for Village at Prasada

    April 22, 2026

    Home Builder Sentiment Dips in April

    April 22, 2026
    Contact Us

    Phone: 480-709-4190
    Address: P.O. Box 12196 Tempe, AZ 85284
    Email: sales@azbex.com

    Type above and press Enter to search. Press Esc to cancel.