By Roland Murphy for AZBEX

The Jan. 8 meeting of the Casa Grande Planning and Zoning Commission saw one of the first known instances of Arizona’s new law requiring administrative review and approval of site plans and some other project processes, reversing a previously issued denial.
House Bill 2447 was passed by the Arizona State Legislature and signed into law by Gov. Katie Hobbs last year. Under the law, site plans, plats and design review requests now bypass public hearings and must be subjected to an objective administrative review based on standardized criteria. The new statute went into effect Dec. 31.
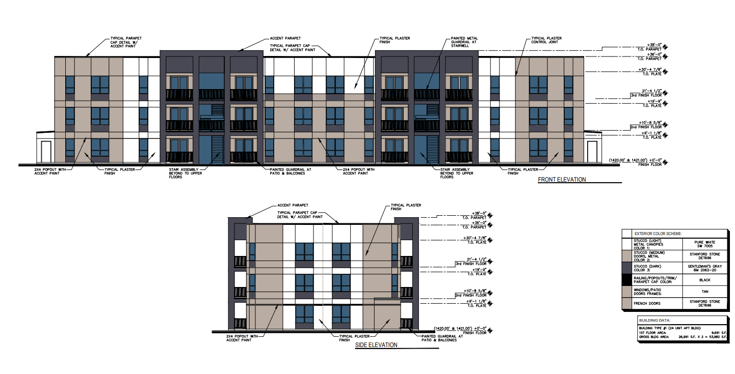
The Planning and Zoning Commission denied a major site plan review for the 336-unit Casa Grande Commons Apartment Homes proposal in its Sept. 4 meeting. As previously reported in the Sept. 9 subscriber-only edition of AZBEX, “According to a local news report, traffic impacts and road infrastructure were the primary reasons for the 3-2 vote denying the request that would have allowed the development to move forward. The intersection of Mission Parkway and Cottonwood Lane was a major point of focus, as Mission Parkway is a two-lane road.”
The week before, AZBEX had been the first outlet to report on the project. (AZBEX; Sept. 2, 2025)
According to the original article, “The 15-acre multifamily development is part of Walton Global Holdings’ 591-acre Casa Grande Commons Planned Area Development master-plan, which was granted a General Plan amendment and rezoning in December 2022. The proposed apartment site northwest of Florence Blvd. and Mission Parkway is currently undeveloped farmland, according to the staff report.”
Another local article noted a City housing study that may or may not have shown the project’s need was incomplete at the time of the vote. The incomplete study was cited as a reason for rejection by some members.
Representatives of project owner The NRP Group were quoted in a Sept. 8 DATABEX status note as saying, “We’re awaiting feedback from the City to further understand our options at this time.”
The Jan. 8 Planning and Zoning Commission agenda shows the 15-acre project at 1400 N. Promenade Pkwy. has now been administratively approved.
The NRP Group is the project owner, with Biltform Architecture serving as the design firm.

