By Roland Murphy for AZBEX

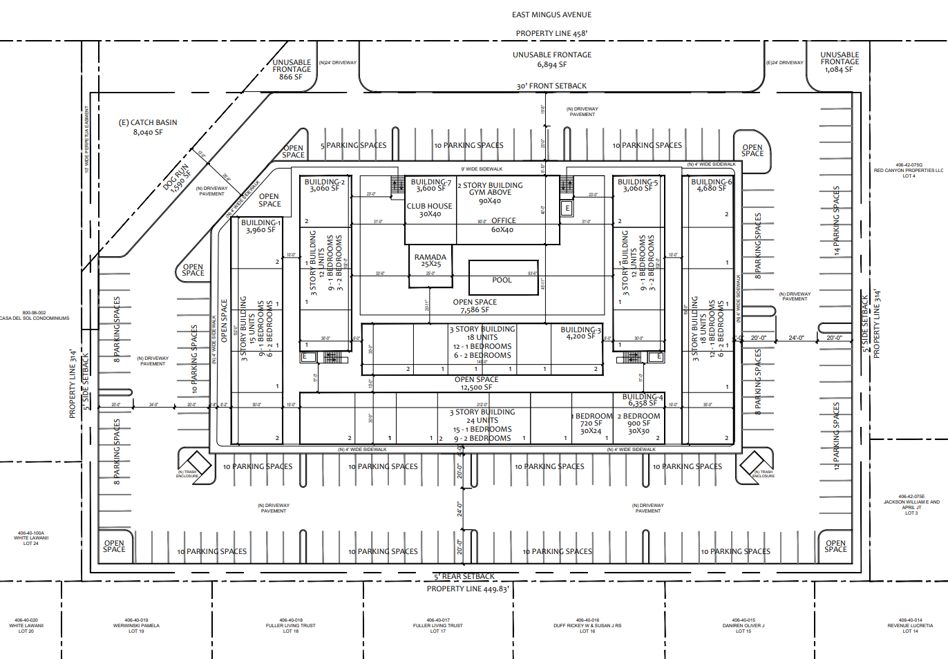
In its March 16 meeting, the Cottonwood Planning and Zoning Commission recommended approval of a rezoning request for a 96-unit apartment development on 3.25 acres at 1013 E. Mingus Ave., roughly 0.4 miles west of Main Street.
Current zoning for the site is R-1 (Single-Family Residential). The development team has requested rezoning of the property to R-3 (Multiple Family Residential). The Cottonwood General Plan designates the site as HR (Residential/High-Density), which supports the rezoning request.
According to the background information accompanying the request, “Additionally, the project site is adjacent to lots that are zoned R-1 and R-3. The parcels north, west, and east of the site are zoned R-3 with multi-family residential uses on them. The north parcel is separated by the Mingus Avenue right-of-way. The parcels south of the site are zoned R-1 with single-family residential uses on them.”
The property is currently owned by WESTCOTT IFP RE LLC. Yuma Enterprises LLC, managed by Muthiah Nachiappan, is under contract to buy the site, according to the submitted narrative, and will act as the developer.
The site is presently occupied by a 10KSF former church that is currently being used as a funeral home.
The site plan calls for 66 one-bedroom and 33 two-bedroom units distributed through six buildings. The agenda and other materials show the unit count at 96 units in total. We have been unable to confirm whether the final unit count will be 99 or 96 as of press time. The maximum building heights are planned for three stories. Plans also include a 3.6KSF office/clubhouse/gym building, a ramada and a pool.
A neighborhood meeting was held in February, with two area residents attending. According to the summary, “Discussion topics included the height of the proposed structures, setbacks from adjacent property lines, landscaping for privacy screening, proposed perimeter fencing/walls, and architectural features of the building elevations.”
During the Commission meeting, residents and commissioners both expressed concerns about the project’s height, density and setbacks. Residents also noted worries during the hearing and by email about the potential impact on neighborhood character and the potential for intrusion on the privacy of single-story homeowners if the three-story height is permitted.
In preparing to make a motion to recommend approval of the rezoning request, Commission Chair Lindsay Masten reminded the body the request under consideration only covered the rezoning, not the project specifics or any potential objections to the development plan. She also said the development team has a “unique opportunity” to ensure harmony with the existing neighborhood and encouraged the applicant to revise the site plan and elevations to better reflect the neighborhood character.
The recommendation for approval passed on a vote of 5-2.
The project design firm is drattr LLC.

