By Tasha Anderson for AZBEX
Ross Aviation Operations, LLC, a Fixed Base Operator (FBO) with locations throughout the United States, is looking to develop a new hangar building at the Scottsdale Airport located at 14600 North Airport Drive.
Architect and applicant, DWL Architects + Planners, Inc., on behalf of Ross Aviation, submitted documents to the City of Scottsdale on August 4th and is requesting approval of the site plan, landscape plan and building elevations for the project, known as the Ross Aviation SDL Hangar.
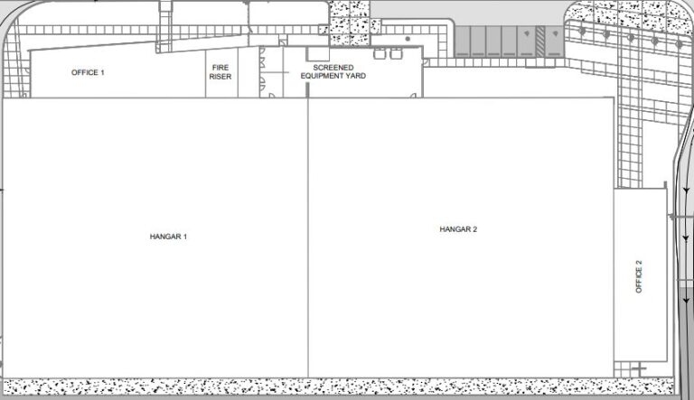
The project will consist of a 64KSF hangar building comprised of two, 28KSF hangar bays and two, 3KSF shell office spaces. According to the project documents, “The remaining 2KSF is dedicated building service space for the fire pump, electrical and IT rooms.”
The site houses an existing hangar which will be demolished to make way for the new building.
The building will provide shade to those using the building with a series of canopies, window glazing and a reflective rooftop membrane. Rooftop equipment will be shielded by parapets and ground level electrical equipment will be located in an equipment yard that is screened by an eight-foot high metal panel clad fence.
Site improvements to the project will include lighting, landscaping, signage and parking. The landscaping will include native desert plants that are drought resistant. A total of 55 surface parking spaces will be provided around the development, including 33 public and 22 secure spaces. Four bicycle parking spaces will also be provided.
“The existing drive location and size is proposed to be modified to provide ease of access to vehicles entering and exiting the site,” the documents state. “A second new drive is proposed to provide direct access for trash and recycling pick up as well as fire department access. A dedicated customer drop-off area is provided for convenience.”
The development still needs to go before the City of Scottsdale Design Review Board, Planning & Zoning Commission and City Council for approval. Currently, no meetings have been scheduled according to the project’s case information sheet.
NEWS TICKER
- [May 8, 2026] - New National Data Hints at Possible Multifamily Momentum Pickup
- [May 8, 2026] - Arizona Projects 05-08-26
- [May 6, 2026] - Tucson Planning to Review Updated Data Center Restriction Plan
- [May 5, 2026] - Ariz. Construction Added 300 Jobs in March
- [May 5, 2026] - Carefree Partnering with SimonCRE on Revised Development
- [May 5, 2026] - Lower Basin States Agree to Short-Term Colorado River Cuts
- [May 5, 2026] - Industry Professionals 05-05-26
- [May 5, 2026] - Commercial Real Estate 05-05-26
