By Roland Murphy for AZBEX
Single-family-style Built-to-Rent projects are the hot trend in multifamily residential developments these days, and Queen Creek is seeing a disproportionately high volume of interest in new unit creation.
Of the 13 multifamily projects – including four master-planned developments – currently listed in DATABEX project database entries for the once sleepy bedroom town of nearly 51,000 residents, seven are BTR.
Two more have recently been added to the town’s potential inventory, bringing that tally up to 9 of 15. If approved as submitted, Evergreen on Germann will add 65 BTR units and the Bungalows at Combs and Gantzel (Phase II) will add 85. These 150 units, combined with the 1,407 already in development, will bring the total to 1,557.
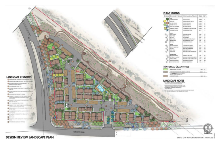
Evergreen on Germann
Evergreen Investment Company has requested the 9.98 gross-/5.5 net-acre site be rezoned to Medium Density residential with a Planned Area Development overlay. The triangular lot at Germann and Rittenhouse is bounded by the Union Pacific Railroad and vacant land in the city of Mesa to the north and east, vacant land proposed for medium density residential development to the west and a residential subdivision to the south.
The homes’ layouts consist of one- and two-story detached and duplex configurations. Quoting from the documents submitted to the Queen Creek Planning and Zoning Commission, the proposed mix of types is:
- 1-bedroom, single-story attached unit (662 livable SF per unit)
- 2-bedroom, single-story detached unit (964 livable SF per unit)
- 2-bedroom, two-story attached unit (1,179 livable SF per unit)
- 3-bedroom, two-story attached unit (1,466 livable SF per unit)
Planned amenities include a clubhouse, pool and spa, barbeque, informal seating area, dog park, outdoor exercise stations, a “tot lot” and trail system as well as pocket open spaces throughout the development.
The developer is Evergreen Investment Company. The property owner is Rittenhouse Holding LLC. Felten Group is the project architect, and civil engineering services are provided by Terrrascape Consulting LLC. The general contractor has not been selected yet, and no project timelines have been issued.
Bungalows at Gantzel and Combs (Phase II)
Bungalows at Combs and Gantzel Phase II is an add-on to a request approved in December 2020 for a 19.9-acre, 236-unit BTR development from Cavan Companies. Phase II will add 85 units as a second phase, bringing the total unit count up to 321 and the total acreage up to 27.2.
The site is bounded by Phase I to the west, vacant land planned for commercial development to the south and east and commercial/single residence land to the north.
Planned amenities include a clubhouse, a resort‐style swimming pool and spa, restrooms, barbeque and seating area, and pedestrian pathways connected to open spaces throughout the development.
Cavan Companies is the owner. Mooradian & Associates is the design firm. La Casa Dulce has confirmed to BEX researchers it will serve as the vertical general contractor. RVi Planning + Landscape Architecture is the landscape designer, and HILGARTWILSON is the civil engineer. Both phases are expected to deliver by Q4 2023.
Status
Both the Evergreen and Bungalows Phase II projects were unanimously recommended for approval at the November 10th Planning & Zoning Commission meeting. Both are scheduled to be heard by the Town Council on December 1st.

