By Adrienne St. Clair for Arizona Builder’s Exchange
Quyp Development Services, LLC has submitted a rezoning application to the City of Mesa to build a mixed-use development on 13 acres at the NWC of Crismon Road and US 60 in Mesa.
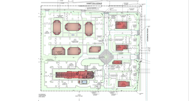
The development, called Quyp at Crismon and US 60, will potentially include a hotel, restaurants, retail buildings, business offices and medical office space. The developers anticipate slightly more than 147KSF of possible building space. The project is valued between $20M and $30M.
The site, which is currently undeveloped, vacant and flat, is surrounded by multiple zoning designations and land uses. The entire north side of the property is the Christ Church of the Valley. The east side of the site is zoned as Limited Commercial and includes a Home Depot and other, smaller, establishments. At the NEC of Crismon Road and Hampton Avenue sits Mountain Vista Medical Center and to the south, on the other side of the 60, are residential subdivisions.
The land is currently designated as Planned Employment Park with a PAD overlay and a Council Use Permit. The developers propose to keep the PEP designation, remove the CUP and amend the PAD by reducing the area from 39 gross acres to 14.72 gross acres (12.9 net acres). The amended PAD will help owners market the property to potential users, according to the proposal. The CUP, which limits total retail building area to 120KSF and individual users to no more than 13KSF, will no longer be necessary because the new property will not include any large retail spaces.
The developers believe there will be “substantial demand” in this location for the uses this project will provide. The proposal lists several reasons to support their belief, including the site’s proximity and easy access to US 60, the already established employment centers along Crismon Road and the high traffic on both Crismon Road and US 60. Additionally, the developers boast that the proposed uses for this site will be ideal for this location because they will serve as “a transitional development between the proposed residential uses to the west and the established commercial and medical uses along Crismon Road.”
According to the plan submitted to the city, the proposed plan conforms with the General Plan for the City of Mesa, most particularly because it will help bring a diverse group of job opportunities for city residents.
