By BEX Staff for AZBEX
Following a site shuffle, Merit Partners has filed pre-application paperwork with the City of Mesa updating its plans for Legacy Business Park at Pecos and Crismon roads.
Merit originally planned Legacy Business Park Phase I as a two-building, 645.5KSF industrial site on the property next to its currently intended location. Property owner Levine Investment Limited Partnership sold that location to DSV Air and Sea Inc. to develop its 1.69MSF regional headquarters. DSV, in exchange, agreed to give Merit Partners an equivalent property nearby.
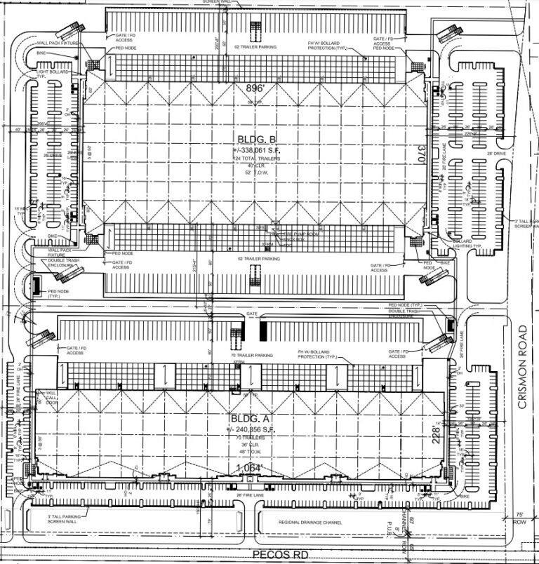
The new plan for Legacy Business Park sits on 42 acres adjacent to the site now under development by DSV. The revised site plan now calls for two buildings of 240.4KSF and 338KSF. The site lies in Maricopa County, and Mesa will have to annex and entitle the property for the project to move forward.
The site plan for the updated project shows Butler Design Group, Inc. as the design firm.
According to media reports, Merit Partners will target users in distribution/logistics, warehousing/storage, manufacturing, aerospace and similar fields for the development.

