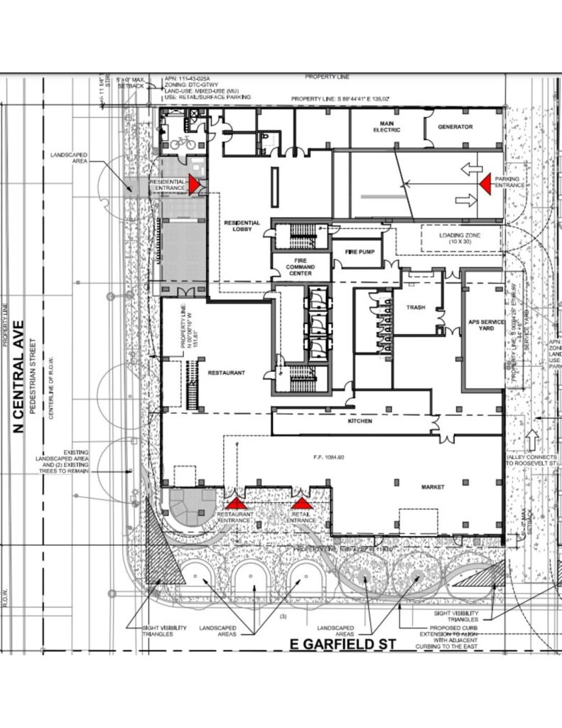
Mainstreet Capital Partners is requesting increases to the allowed building height and density for a 0.92-gross acre parcel at the NEC of Central Avenue and Garfield Street in Roosevelt Row.
If approved, the developer plans to build a 30-story mixed-use tower with 297 residential units, 142 parking spaces and slightly more than 8KSF of ground floor retail and restaurant area.
A vacant auto repair shop on the site would be demolished to make way for the new development.
Phoenix’s Central City Village Planning Committee will hear the requests in a Feb. 12 meeting. The site owner is KDCD LLC. Mainstreet Capital Partners is the developer, and the design firm is Shepley Bulfinch. (Source)

