By Roland Murphy for AZBEX
On Dec. 21, the Surprise Planning and Zoning Commission is scheduled to hear a request to rezone approximately 12 acres at the NEC of Reems Road and Tierra Buena Lane for development of a 168-unit mixed-service senior residential community.
Gold Stream Development has requested a zoning change from Neighborhood Commercial with Planned Unit Development Overlay and Rural Residential to Residential High Density. The company has also requested release from a deed restriction covering one portion of the property.
The Pointe at Surprise Senior Living Community would combine five existing parcels into one property for purposes of creating the new facility. One of those properties has a 2015 deed restriction in place that limits development to a maximum of 16 or fewer units based on an old development plan that was never executed. In addition to the rezoning and lifting of the deed restriction, the plan will also require a final plat to combine the five parcels for development.
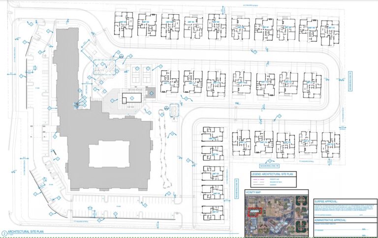
Under the Pointe proposal, Gold Stream intends to create a 168-unit “age in place” community targeted primarily at existing Surprise residents as they move into retirement and to allow for their changing needs as they age. The west half of the property will feature a three-story senior living facility with 88 independent living, 38 assisted living and 14 memory care units.
According to the project narrative, “Each specialized living area will comprise a separate wing of the western building, but all will be connected to a common core area. This design is visually appealing as it breaks up the building’s mass into multiple, smaller wings and creates beneficial and walkable outdoor open space. The building is buffered by single story active adult Cottages between the main facility and existing adjacent neighborhood to the north.”
Those cottages will consist of 27 detached units geared toward active adults. The cottages will have full access to community amenities and are intended to serve as a buffer between the main building and the existing residential neighborhood.
A one-unit discrepancy exists between the Sept. 5 narrative and the March 2023 site plan. The narrative description detailed above claims 168 units, but the breakdown totals 167 units, with 140 in the main building. The site plan, however, shows 53 assisted living/memory care units, rather than the description’s 52. The site plan breakdown calls for 53 assisted living/memory care, 73 one-bedroom/studio and 15 two-bedroom, for a total of 141 units.
The narrative says planned amenities include a “clubhouse and swimming pool, lounging areas, BBQ, sports courts, a dog run, dining and meals, housekeeping, salon, gym, theater, and full access to numerous daily activities within the main facility.”
Planning staff has recommended approval of the request.
Following the initial due diligence, Gold Stream and the development team held one in-person and one virtual meeting to discuss the proposal with area residents. The citizen participation report shows attendees expressed support for the project as planned, an increasingly unusual circumstance, particularly in Surprise. Letters of support have been received by City staff, and the report says more statements of support are expected during the project hearings.
Attendees asked if Gold Stream would be making offsite improvements to the local flood irrigation channels that connect through the property. Gold Stream could not secure approval or authority to make those improvements, but representatives plan to work with residents and the City to make improvements within the property and will provide updates as to any changes or work performed.
Gold Stream Development, LLC is the developer. The design firm is LMnt Architecture. McNeil Engineering is the civil engineer. The project is represented by Quarles & Brady LLP.

