By Roland Murphy for Arizona Builder’s Exchange
Arizona’s largest employer is taking a view toward development in Phoenix.
Banner Health has submitted a Planned Unit Development proposal to the City of Phoenix, “to create specific standards and guidelines that will serve as a master plan for the future long-term development of the Banner University Medical Center Phoenix. The goal is to replace numerous site plans and stipulations that have been approved over the last 40 years, with a vision for the next 40 years, and a comprehensive set of standards and guidelines to implement that vision.”
While short on specifics at the building-by-building level, details of the overall design concept and intended land use are fairly extensive. As a healthcare campus that focuses on training third- and fourth-year medical students from the University of Arizona College of Medicine Phoenix programs while simultaneously providing both inpatient and outpatient care across an extensive array of specialties, the Banner UMCP design concept targets the “Flows of Medicine” across the campus and its offerings.
More than 300 residents and fellows are based at the facility. Despite having education as a key mission, a healthcare campus differs significantly from a college campus, Banner states. College campus design is intended to promoted walking as students go to various buildings over a large area. A well designed healthcare campus is intended to minimize walking and optimize access to individual buildings depending on an individual’s needs.
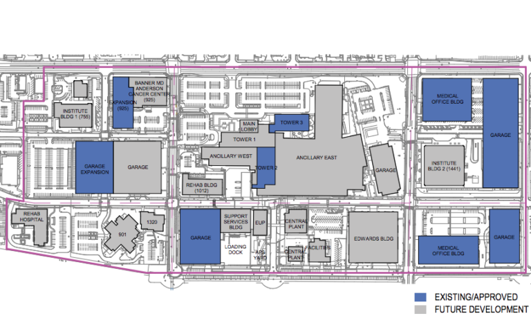
According to the submittal’s land use plan, “The campus is bounded by 13th Street at the east, 8th Street on the west, McDowell Road on the north, and I-10 on the south. For the most part, the campus has three major sections. The center of campus is dedicated to Inpatient care. The east and west sides are predominately Outpatient care, and the south side is infrastructure and support for the whole campus… As the campus grows, Outpatient functions will be added to the perimeter, reserving Inpatient space at the center of campus.”
The proposal breaks the campus into six blocks. The proposed land use plan and existing/approved site plan show the mix of currently constructed, under construction and future planned buildings.
In April, the Phoenix Business Journal reported Banner Health had a total of $1.7B in development planned across 367 active building projects throughout its operations. The majority of those are ongoing across several years.
The PUD submittal notes Banner’s currently active plans will spend nearly $1B on new clinics and hospital towers in Tucson and Phoenix to upgrade facilities. “Projects at the Banner University Medical Center Phoenix include a $179M Emergency Department expansion that opened in June 2017, increasing capacity to serve approximately 90,000 patients a year. A $239M 13-story patient tower currently in final phases of construction is expected to open in October 2018 and will house 256 patient beds. The main entry and lobby portions of the tower will be completed in December 2020. The planned 80KSF M.D. Anderson Cancer Center is currently under construction and will open in May 2019. A $50M clinical space is planned near the existing Banner University Medical Center Phoenix facility.”
Banner Health currently maintains a staff of 43,000 full- and part-time employees across the state. According to a Sept. 8 article in The Arizona Republic, the company is looking to fill 1,500 more positions this year and is hosting a series of career open houses throughout September.
Messages left for City of Phoenix development officials, as well as development and media relations officials at Banner Health, were not returned by press time.
