By Roland Murphy for Arizona Builder’s Exchange
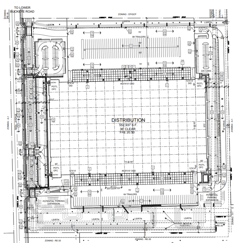
Another company is looking to capitalize on the logistical advantages the Loop 202 South Mountain Freeway will bring to the West Valley. Trammell Crow Company has submitted a rezoning request to the City of Phoenix for 37.8 acres on South 59th Avenue south of Lower Buckeye Road to build a 553KSF speculative distribution center project.
According to the narrative submitted with the request, “The building will be 36′ – 40′ clear and provide flexibility for additional trailer storage on site as required to meet tenant demand. The building and site are being designed to accommodate a large, single user or can be subdivided for smaller tenants as needed.” The proposed building height is 45 feet.
Arizona Department of Transportation officials, as well as other regional government and business leaders have touted the impact the South Mountain Freeway will have on commercial and industrial development along its route, particularly in the immediate area of South 59th Avenue. Last month, AZBEX reported on another distribution and logistics center under development in the freeway zone, this one a 106KSF facility for Central Freight Line. (AZBEX, Jan. 9).
The site for the Trammell Crow proposal is currently occupied by vacant agricultural land and surrounded by other agricultural and industrial properties. The rezoning request would consolidate the site’s zoning as A1 Light Industrial.
Planned building material is mainly concrete tilt panel painted primarily in grey with blue and metallic color accents.
Zoning staff had several stipulations along with their recommendation for approval. Among them were:
- Establishing 65-foot landscape setback along 59th
- Creating a 10-foot high wall and hedging plant material to screen the southern edge of the site
- Detached sidewalks with a five-foot landscaping strip between the sidewalk and curb
- Planting shade trees on all street frontages, and
- Constructing a 10-foot-wide multi-use trail along the north side of the adjoining Elwood Street Alignment
Many of the stipulations were imposed because the area around the site served by multiple bus lines, and a future light rail stop is planned at 59th and Interstate 10. As a result, staff applied municipal goals and program guidelines for issues such as walkability and urban shade.
NOTE: Paid subscribers receive additional project details in our twice-weekly PDF publication, including project stakeholder information and valuable project bidding leads. Find out more about AZBEX subscriptions or contact Rebekah Morris at rmorris@azbex.com or (480) 709-4190.

