By Roland Murphy for AZBEX
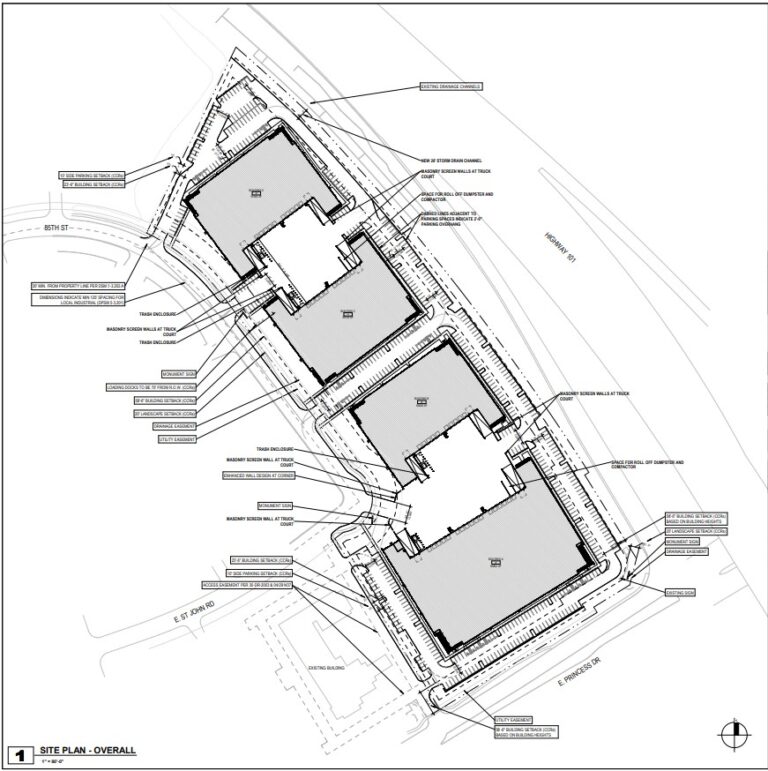
Creation Equity wants to build a nearly 268KSF, four-building flex industrial development called The Loop on 16.67 acres in the Perimeter Center near the Loop 101 freeway and East Bell Road.
The 16.67-acre site is in the eastern section of the property, adjacent to office buildings. A hotel sits to the west and has a shared driveway off Princess Drive.
Most of the lots in the Perimeter Center have Industrial Park I-1 zoning that allows for light industrial and manufacturing, office and other supportive uses. According to the submitted narrative, ββ¦many of the lots developed out as mainly offices with ancillary commercial and hotel uses.β The site Creation wants to build on is one of the last areas in the center that remains undeveloped.
According to the narrative, a key reason the earlier plan was never executed and why the site remains undeveloped is there was no consideration for the drainage that comes into the site from a culvert system beneath the freeway. Creation intends to accommodate and pay for a drainage solution for the site and the Perimeter Center.
The Loop will consist of one building of 101.2KSF, another of 54.6KSF, and two buildings of 55.9KSF each, according to the site plan.
The property sits at the intersection of 85th Street and East St. John Road. Creation is requesting to use the existing I-1 zoning. An earlier development plan included two 65-foot office buildings with parking and a parking garage. That case amended the development standards to allow for the taller building heights. Creation wants to remove the height increase allowance and revert to the default I-1 development standards. The standards allow for building heights of up to 52 feet. The new plan calls for buildings of 40-42 feet.
Creation RE/PE is the developer. The site plans and elevations are by LGE Design Group. The engineers are Hunter Engineering and Huitt-Zollars. Tiffany & Bosco, P.A. is the project representative. No hearing dates have been scheduled by either the Scottsdale Planning Commission or the City Council.

